Til leie

Alna/Furuset: Pent oppusset kombinasjonslokale på 465 kvm. Unik eksponering mot E6. Bærekraftig eiendom.

Nøkkelinfo:

Adresse:
Tevlingveien 15, 1081 OSLO

Areal:
465 m2

Type lokale:

Kombinasjon

Kort om eiendommen:

Eiendommen fremstår som moderne og meget attraktiv. Eiendommen er leid ut til profesjonelle og solide selskaper innenfor ulike bransjer.

Diverse:
* Pent oppusset inngangsparti og fellesareal.
* Godt ventilasjonsanlegg med kjøling fra 2022.
* Solcellepaneler på taket.
* Kantine.
* 2 stk. felles møterom for bygget. Bestilles ved behov.
* Personheis.
* Felles sykkelparkering innendørs.
* Dame- og herregarderobe i bygget.
* Mulighet for å leie p-plass.
* Gjesteplasser ved inngangen.
* Det foreligger energiattest for bygget, klassifisert med energimerke C.

Beliggenhet:

Meget sentralt plassert langs E6 på Alnabru/Furuset. Avkjøringen rett fra E6. Meget gode profileringsmuligheter.
Nærmeste nabo er Radisson Hotell & Conference, Bohus, Jysk, McDonald`s og Circle K.
Dette er et populært område med god beliggenhet i forhold til E6 og aksen Oslo - Gardermoen, Alnabru, Lillestrøm og Lørenskog.

Kommunikasjon:
Enkel tilgang med bil og kort vei til offentlig kommunikasjon. Det tar ca. 3 min å gå til Trosterud T-bane. Her går t-banens linje 2 (Østerås-Ellingsrudåsen) og det tar ca. 17 min. til sentrum.
Her stopper også følgende busser: 344 til Gardermoen, 25 Lørenskog/Majorstuen, 79 Grorud/Holmlia og 411 Lillestrøm/Oslo Bussterm.

Adkomst:

Se vedlagt kart.

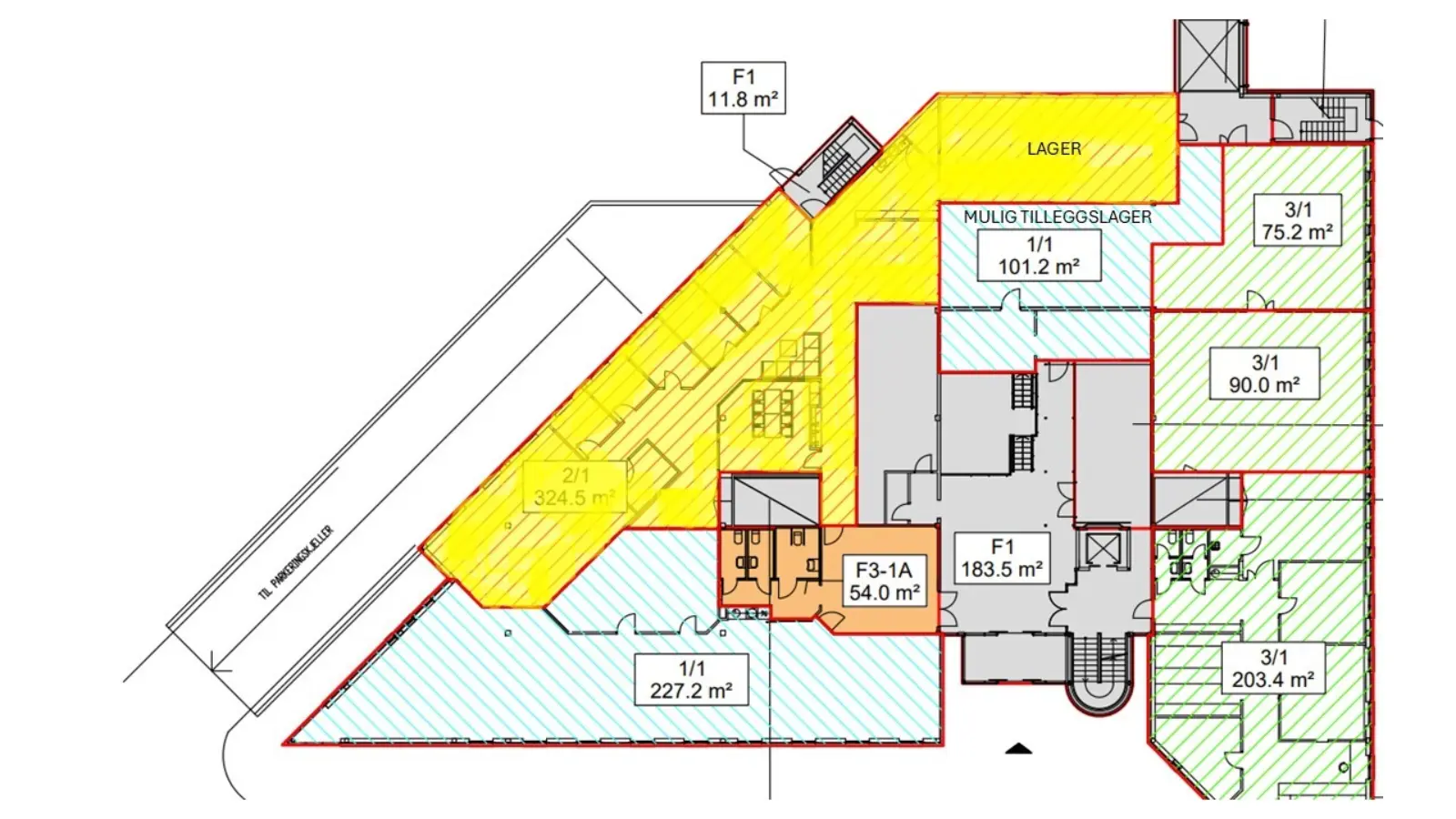
Innhold:

Vi har følgende arealer ledig i eiendommen:

Kombinasjonslokale på ca. 465 kvm BTA.
Kontorareal på 374 kvm og lager på 91 kvm i byggets 1.etg.
Det er direkte adkomst mellom kontor og lager.
Kontorlokalene består av 6 kontorer av ulik størrelse med plass til 1-2 personer per kontor. 2 stk. landskapsareal for 4-6 personer. Kjøkken med spiseplass, 2 møterom og sosiale soner.
Lagerareal med felles innkjøring via port fra bakkeplan. Slusen deles med 2 andre leietakere. Egen port inn til eksklusivt lager fra slus. Takhøyde på ca. 3 meter.

Lokalet har en god og moderne standard.

Kombinasjonslokale på 481 kvm BTA.
Kontorareal på ca. 265,7 kvm og lager på 215,7 kvm. Del av lager arealet kan også benyttes som kontor.
Det er mulig å etablere egen inngang fra gateplan for mer publikumsrettet virksomhet.

Tilleggsareal lager på ca. 132 kvm BTA.
Vi har også mulighet til å leie ut dette lageret sammen med en av de overnevnte arealene ved behov for mer lager.

Alle arealene i 1.etg. kan slåes sammen til et stort areal på ca. 1.078 kvm BTA.
Lokalene egner seg svært godt til virksomheter som driver med netthandel, engrosvirksomhet, etc., hvor det både er behov for kontorer, lager og butikk/showroom.


Ledig areal 3. etasje:
Vi har ledig enkeltkontor på ca. 20 kvm BTA. .
Det er etablert minikjøkken i fellesareal som deles mellom leietakerne på samme etasje. Adgang til felles toalett.
Lokalet har en god og moderne standard.

Diverse:

ENERGIBESPARENDE TILTAK/BÆREKRAFT
I 2022 ble det gjennomført flere Taksonomi kompatible tiltak, med foreløpig reduksjon i energiinnkjøp på 38%.
Innstallering av solcellepanel på tak, installert nytt ventilasjonssystem og SD anlegg.
Hele byggets avfallshåndtering kildesorteres.

Gjennomførte tiltak og løpende drift overvåkes og rapporteres ved bruk av Varig, Smartvatten og Carrot. Eiendommen har derfor hele tiden god oversikt over forbruk og utslipp. Leietakere kan til enhver tid hente ut rapporter for bærekraftstiltak, energiforbruk, CO2-utslipp m.m.

Dette, sammen med eiendommens generelle standard, gjør at lokalene fremstår meget konkurransedyktige med en tydelig bærekraftig miljøprofil.

Kontakt oss for visning og tilbud:

Silje Bolstad

Silje Bolstad

92 05 42 22
sb@arealpartner.no

Nærområdet:

Annonsene kan være mangelfulle i forhold til lovpålagt opplysningsplikt. Før bindende avtale inngås oppfordres interessenter til å innhente komplett informasjon fra meglerforetaket, selger eller utleier.