Til leie

Alnabru - Kontor og lagerlokaler til leie. Gode parkeringsmuligheter.

Nøkkelinfo:

Adresse:
Ole Deviks vei 46, 0668 OSLO

Type lokale:

Kontor

Kort om eiendommen:

Vi har for utleie to kontorlokaler på henholdsvis BTA 364 og 446 kvm., samt flere mindre lagerlokaler. Lokalene leies ut separat eller samlet.

Bebyggelse:

Ole Deviks vei 46 er et kombinasjonsbygg oppført ca. 1986. Eiendommen har kjeller med biladkomst (parkering/lager) og tre etasjer med kontor, forretning og lager.

Beliggenhet:

Eiendommen har en sentral beliggenhet mellom Alnabru og Bryn.
Det er enkel atkomst med bil fra både E6 og Ring 3. Det tar kun 4 minutter med bil fra Helsfyr, ca. 10 minutter til sentrum og ca. 25 min. til Oslo Lufthavn Gardermoen. Området består hovedsakelig av næringsbygg med handel, kontorer og produksjon/lager.

Innhold:

Vi har følgende ledige lokaler i bygget:

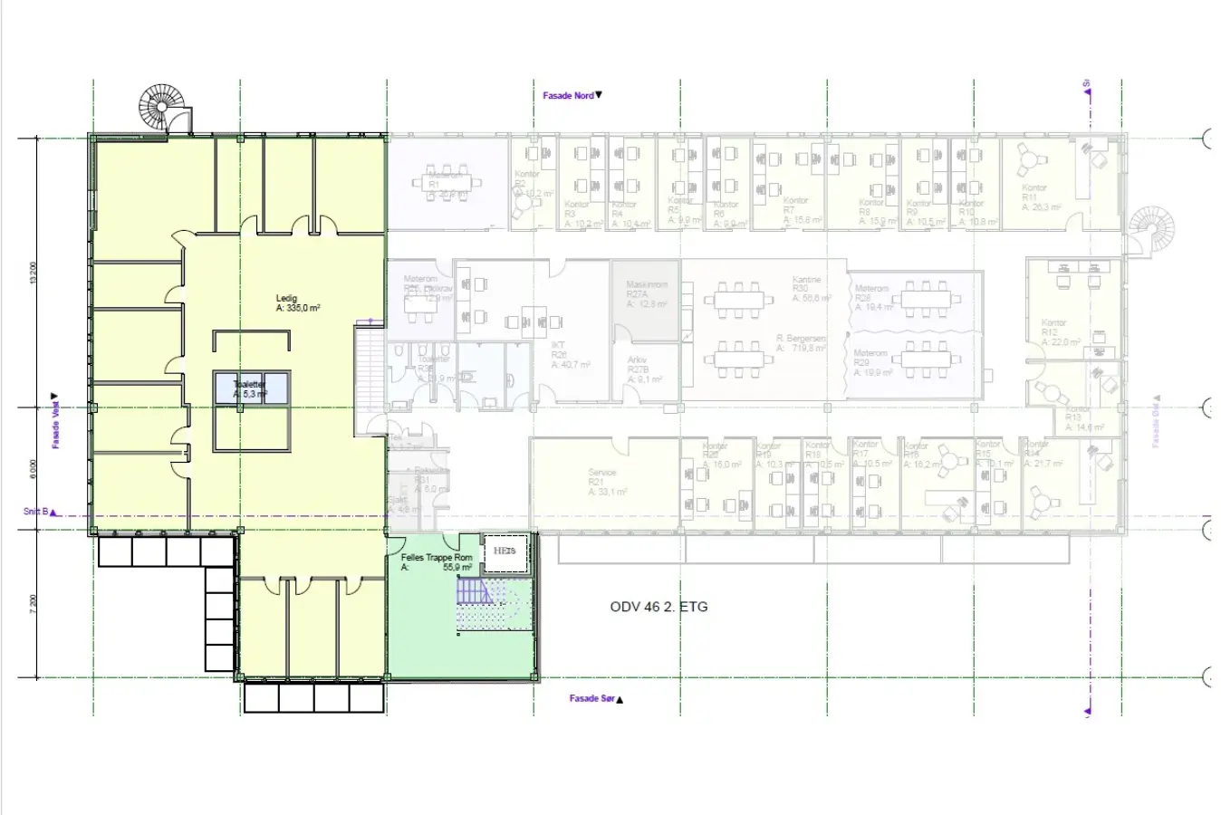
Kontorlokale i 2. etg. BTA 364 kvm.: Lokalet er oppdelt i kontorer og møterom i varierende størrelser, åpent kontorlandskap og toaletter. Lokalet kan tilpasses ny leietaker etter avtale.

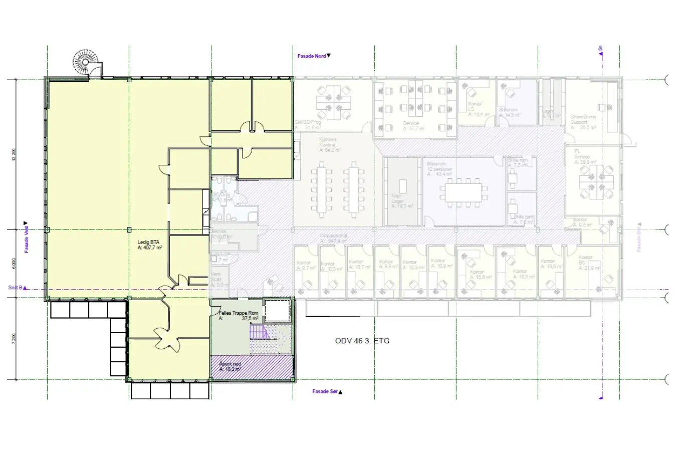
Kontorlokale i 3. etg. BTA 446 kvm.: Lokalet er oppdelt i kontorer og møterom i varierende størrelser, stort åpent kontorlandskap og kjøkken. Lokalet kan tilpasses ny leietaker etter avtale.

Lager 1 i kjeller. BTA 111 kvm.: Lagerlokale med adkomst (dobbeldør) fra parkeringskjeller. Takhøyde ca. 280 cm.

Lager 2 i kjeller. BTA 35 kvm.: Lagerlokale med adkomst fra parkeringskjeller. Takhøyde ca. 280 cm.

Lager 3 i kjeller. BTA 75 kvm.: Lagerlokale med adkomst fra parkeringskjeller. Takhøyde ca. 280 cm.

Lager 4 i kjeller. BTA 30 kvm.: Lagerlokale med adkomst fra parkeringskjeller. Takhøyde ca. 280 cm.

Tilfluktsrom i kjeller. BTA 161 kvm.: Lokale med adkomst fra parkeringskjeller. Takhøyde ca. 250 cm. Lokalet inneholder stort åpent rom, samt to garderober med dusj og wc.

Standard:

Eiendommen holder god standard med representative fellesområder. Bygget har ventilasjonsanlegg, heis og HC WC. Det er mulig å benytte kantine i nabobygget.

Kontakt oss for visning og tilbud:

Reidar Kjølberg

Reidar Kjølberg

95 28 26 60
rk@arealpartner.no

Silje Bolstad

Silje Bolstad

92 05 42 22
sb@arealpartner.no

Nærområdet:

Annonsene kan være mangelfulle i forhold til lovpålagt opplysningsplikt. Før bindende avtale inngås oppfordres interessenter til å innhente komplett informasjon fra meglerforetaket, selger eller utleier.