Til leie

Grini Næringspark: Nyoppført bygg med lokaler for storhandel, lager m.m. Parkering og kjøreport. Fra 384 til 923 kvm.

Nøkkelinfo:

Adresse:
Grini Næringspark 7, 1361 ØSTERÅS

Type lokale:

Kombinasjon

Kort om eiendommen:

De ledige lokale ligger i et helt nytt næringsbygg som ferdigstilles i disse dager. Lokalene ligger på bakkeplan med god profilering og egner seg godt til handel, lager, service m.m. Bygget holder topp moderne standard og det er mulig å tilpasse lokalet etter leietagers behov.

Bebyggelse:

Eiendommen er nyoppført og ferdigstilles våren 2026.Bygget vil inneholde produksjonslokaler for Baker Hansen, bakeriutsalg og to lokaler som skal leies ut til eksterne leietakere.

Beliggenhet:

Eiendommen ligger sentralt i etablerte Grini Næringspark i Bærum som er et attraktivt og veletablert næringsområde vest for Oslo, ca. 5 min med bil fra Røa, ca. 15 min fra Sandvika og ca. 15 min fra Oslo sentrum. Området består av variert næringsvirksomhet innen blant annet lager, handel og service. På område finnes Østerås Bil, Kid, Jula, Baker Hansen, Plantasjen, Europris, Bærum Kjøkkensenter med flere.

Adkomst:

Eiendommen har enkel adkomst med bil fra hovedveinettet via Griniveien. Området har kollektivforbindelser med buss i nærheten, samt T-bane på Østerås.

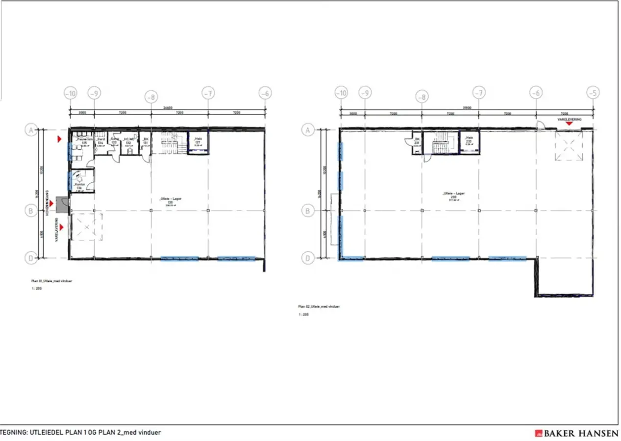
Innhold:

Det er to ledige lokaler i bygget som kan leies ut separat, eller samlet (intern trapp mellom lokalene).

Lokale i 1 etg er på BTA ca. 384 kvm. og har god profilering mot gaten. Arealet inkluderer funksjoner som lager/forretning, kontor, pauserom, HCWC, garderober og tekniske rom. Lokalet har egen adkomst og kjøreport. Takhøyde ca. 4,2 meter.

Lokale i 2 etg er på BTA ca. 540 kvm. Arealet leies ut sammen med Lokale 1, eller som et separat lager. Lokalet har egen adkomst og kjøreport. Takhøyde ca. 3,4 meter.

Begge lokalene kan tilpasser etter leietagers behov for planløsning. Det er i tillegg mulig å sette inn flere vinduer i fasaden.

Standard:

Eiendommen er nyoppført og holder meget god standard. Eiendommen har blant annet ventilasjonsanlegg og jordvarme.

Parkering:

Leietaker vil disponere 5 parkeringsplasser, én av disse er HC-parkering. Det er mulighet for å leie flere parkeringsplasser etter avtale.

Reguleringsplan:

Eiendommen ligger i et område som iht. eldre reguleringsplan datert 14.05.2003 er regulert til industri, lager, forretning.
Reguleringsformål er: industri, lager, forretning (arealkrevende produkter som for eksempel biler, kjøkkeninnredning, møbler, engroshandel, servicevirksomhet.)

Kontakt oss for visning og tilbud:

Reidar Kjølberg

Reidar Kjølberg

95 28 26 60
rk@arealpartner.no

Nærområdet:

Annonsene kan være mangelfulle i forhold til lovpålagt opplysningsplikt. Før bindende avtale inngås oppfordres interessenter til å innhente komplett informasjon fra meglerforetaket, selger eller utleier.