Til leie

GRÜNERLØKKA: Flott hjørnelokale på 109 kvm v/Sofienbergparken. Passer til servering/butikk/cafe.

Nøkkelinfo:

Adresse:
Kirkegårdsgata 1D, 0558 OSLO

Areal:
109 m2

Type lokale:

Servering

Kort om eiendommen:

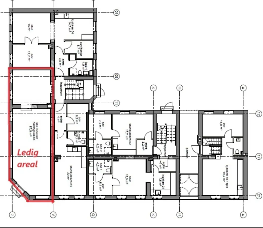
Flott eiendom i Kirkegårdsgata 1. Eiendommen består 3. etasjer, samt kjeller og loft. Næringslokale i byggets 1.etg. og bolig i øvrige etasjer.

Diverse:
* Pen fasade, inngangsparti og fellesareal.
* Store vindusflater.
* Lyse, åpne og effektive arealer.
* Velholdt uteområde.
* Fibertilknytning.
* Felles sykkelparkering i bakgården.

Beliggenhet:

Kirkegårdsgata 1 har en unik beliggenhet rett ved Sofienbergparken. Området tilbyr koselige handlegater, sjarmerende kaféer og spennende spisesteder. Grünerløkka er en varm og levende bydel. Sofienbergparken er et populært sted for pikniker og aktiviteter. I mai arrangeres musikkfestivalen Piknik i Parken.
Kommunikasjon:
Flere buss stopper rett ved parken. Trikken med linje 12, 15 og 18 ligger 5 min. gange fra eiendommen (holdeplass Olaf Ryes Plass).

Adkomst:

Se vedlagt kart

Innhold:

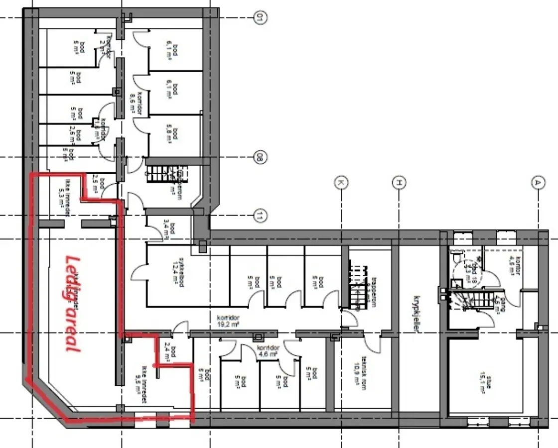
Forretningslokale med egen inngang fra gateplan på ca. 109 kvm BTA.

Lokalene leveres som whitebox , slik at leietaker kan tilpasse lokalene etter sine ønsker og behov.

Utleier vil etablere ventilasjon, bygge toaletter, samt gipse og sparkle vegger og tak. Dersom lokalet leies ut til servering vil utleier bygge det iht. gjeldene krav for ventilasjon, personalrom, HCWC, fettutskiller, m.m.

Første etasje på ca. 61 kvm består av to åpne arealer.
Under etasjen på ca. 48 med interntrapp fra 1.etg. består av åpent uinnredet areal, disse arealene egner seg godt for toaletter, personalrom og lager.

Lokalene er lyse med store vindusflater.

Kontakt oss for visning og tilbud:

Silje Bolstad

Silje Bolstad

92 05 42 22
sb@arealpartner.no

Nærområdet:

Annonsene kan være mangelfulle i forhold til lovpålagt opplysningsplikt. Før bindende avtale inngås oppfordres interessenter til å innhente komplett informasjon fra meglerforetaket, selger eller utleier.