Til leie

Hovin/Hasle: Ledig kombinasjonslokaler på 839 kvm BTA og lager i kjeller på 474 kvm BTA.

Nøkkelinfo:

Adresse:
Hovinveien 43A, 0576 OSLO

Type lokale:

Kombinasjon

Kort om eiendommen:

Eiendommen går over 2 etasjer samt kjeller. Rema 1000 er leietaker i byggets 1.etg.
Diverse:
* Mulig å leie parkeringsplasser på eiendommen.
* Ventilasjon.
* Vareheis.
* Fibertilknyttning.

Beliggenhet:

Eiendommen ligger i et veletablert og urbant nærings- og boområde på Hovin/Hasle i Oslo, med god eksponering og kort avstand til viktige trafikkårer. Området preges av en blanding av boligbebyggelse, dagligvare, service- og næringsvirksomhet, og har et sterkt og stadig voksende lokalt marked.

Sentral plassering gir gode kommunikasjonsmuligheter med kollektivtrafikk i umiddelbar nærhet med blant annet Hasle t-banestasjon ca. 6 min gange og flere bussholdeplasser like ved, noe som sikrer høy tilgjengelighet for kunder og ansatte.

Området rundt Hovinveien har de senere årene gjennomgått betydelig utvikling og fortetting med nye boligprosjekter, kontorer og servicefunksjoner, og vil trolig fortsette å vokse i årene fremover.

Nærområdet har også tilgang til parkeringsmuligheter, gang- og sykkelruter, og god nærhet til servicetilbud som kafeer, treningssentre, skoler og øvrige butikker langs Grenseveien og nær Hasle Torg.

Adkomst:

Se vedlagt kart

Innhold:

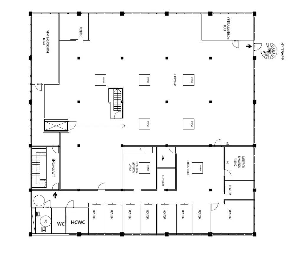
Vi har følgende arealer ledig:
Kombinasjonslokale i byggets 2.etg. med vareheis på ca. 839 kvm BTA.
Kontordel utgjør ca. 350 kvm og lager/showroom på ca. 489 kvm av dette arealet. Kontorarealene består av 7 kontorer av ulik størrelse (2 stk. passer for 2-4 personer), møterom, kjøkken med spiseplass og 2 toaletter hvor av et er HCWC.
Lager-/showroom er et stort åpent rom med et kontor og wc.
Lokalene holder en god standard.

Lager i kjeller på ca. 474 kvm BTA.
Innkjøring via felles kjøreport fra bakkeplan. Egen port inn til lagerarealet.
Lokalet består av åpent areal med et kontor og toalett med dusj.

Vi har også et lagerareal på ca. 200 kvm BTA som kan vurderes utleid sammen med overnevnte arealer.

Vi er åpne for oppdeling av arealene.

Kontakt oss for visning og tilbud:

Silje Bolstad

Silje Bolstad

92 05 42 22
sb@arealpartner.no

Nærområdet:

Annonsene kan være mangelfulle i forhold til lovpålagt opplysningsplikt. Før bindende avtale inngås oppfordres interessenter til å innhente komplett informasjon fra meglerforetaket, selger eller utleier.