Til leie

Kalbakken/Alna: Ledig kombinasjonslokaler på ca. 515 kvm og lager på ca. 140,5 kvm BTA.

Nøkkelinfo:

Adresse:
Østre Aker vei 210, 0975 OSLO

Type lokale:

Kontor

Kort om eiendommen:

Østre Akers vei 210 er en kombinert lager-, verksted- og kontoreiendom. Det er innkjøring til eiendommen fra både Stanseveien og Østre Akers vei.

Diverse:
* Velholdt uteområde.
* Ny oppusset fasade 2021.
* Fibertilknytning.
* Felles sykkelparkering .
* Garasje og ute parkering.
* Vaktmester på bygget.

Beliggenhet:

Østre Akers vei 210 har en sentral beliggenhet i et veletablert industri- og næringsområde på Kalbakken/Alna.

Eiendommen er beliggende inntil Østre Aker Vei med meget god eksponering og enkel kommunikasjon til hovedfartsårene i alle retninger.

Offentlig kommunikasjon med bussholdeplasser i Stanseveien og Østre Akers vei, samt ca. 10 minutters gange til tog (Nydal Jernbanestasjon) som går i retning Lillestrøm og Oslo S. De mange rutene gjør det enkelt og effektiv å bruke offentlig kommunikasjon.

Adkomst:

Se vedlagt kart.

Innhold:

Vi har følgende areal ledig:
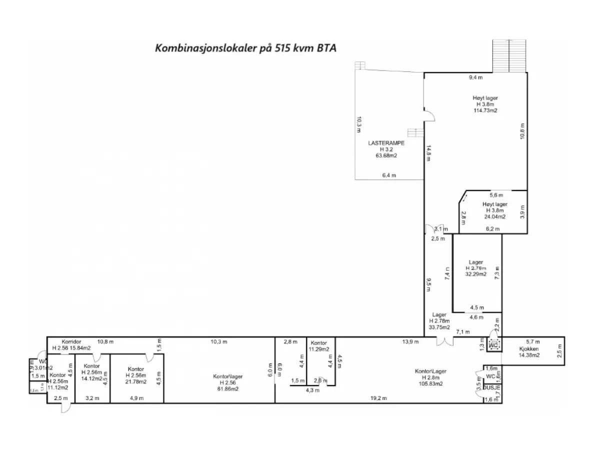
Kombinasjonslokale på 365 kvm eller 515 kvm BTA.: Består av 240 kvm lager og 125 kvm eller 275 kvm kontor. Kontordelen kan også brukes delvis til lagring. Det er direkte adkomst mellom lager og kontor. Lageret har egen kjøreport og tilgang til rampe som deles med en annen leietaker. Takhøyde i lageret varierer fra 3,8 til 2,8meter.
Vi kan vurdere oppdeling av kontordelen.

Kontakt oss for visning og tilbud:

Silje Bolstad

Silje Bolstad

92 05 42 22
sb@arealpartner.no

Nærområdet:

Annonsene kan være mangelfulle i forhold til lovpålagt opplysningsplikt. Før bindende avtale inngås oppfordres interessenter til å innhente komplett informasjon fra meglerforetaket, selger eller utleier.