Til leie

Oslo Nord/Linderud - Klinikk/Helse/Undervisning/Kontor - BTA fra 250 til 2300 kvm - Buss og t-bane i umiddelbar nærhet.

Nøkkelinfo:

Adresse:
Østre Aker vei 94, 0596 OSLO

Areal:
2300 m2

Type lokale:

Kontor

Kort om eiendommen:

Østre Aker vei 94 har en strategisk og sentral beliggenhet på Linderud i Oslo Nord, med umiddelbar nærhet til t-bane (Linderud), busstop (Siemens), samt Ring 3 og E6.

Dette er et godt etablert og veldrevet næringsområde, med en fin kombinasjon av forskjellige virksomheter.


  • Klinikk/Helse/Undervisning/Kontor (bruksendring etter leietakers behov)
  • Nyoppusset kantine 2026 og stort atrium.
  • Mulighet for rimelig leie med differensierte priser og standard.
  • God parkerings kapasitet.
  • Tilpasninger etter leietakers behov og ønsker.
  • Mulighet for leie av store tilleggsarealer/boder/lager i kjeller

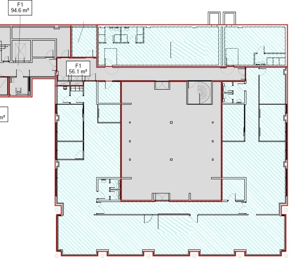
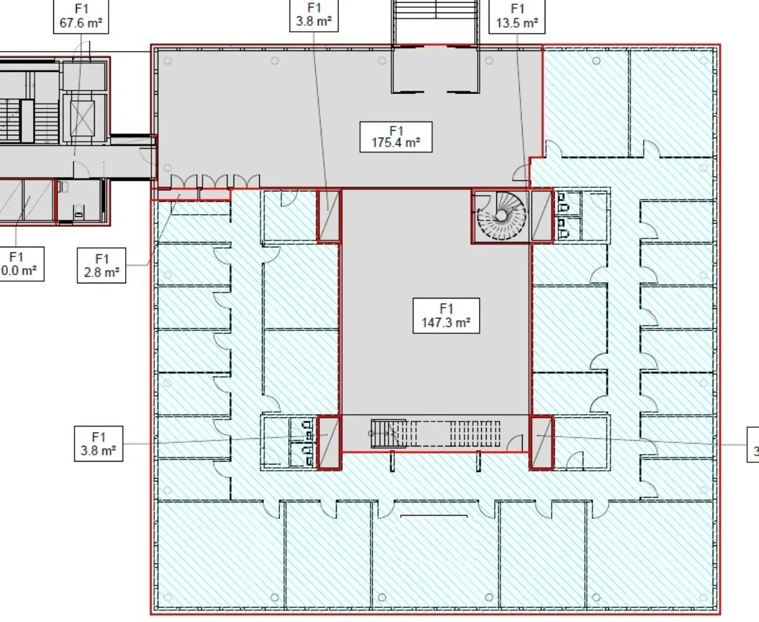
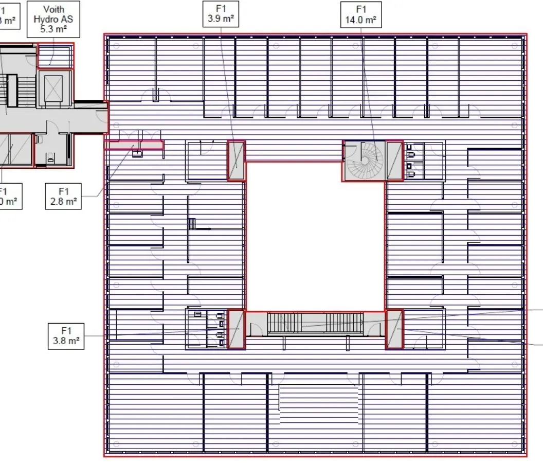
    Innhold:
    3. etg: Utleid
    2. etg: Lokaler fra ca BTA 250 til 850 kvm.
    1. etg: Lokaler fra ca BTA 200 til 660 kvm.
    1. u.etg: Lokaler fra ca BTA 150 til 850 kvm.


    Bygget holder en moderne standard, og er vesentlig oppgardert i senere tid.

    Beliggenheten passer godt for virksomheter som ønsker funksjonelle kontorlokaler med god tilgjengelighet, sentral plassering i Oslo nord og enkel adkomst både med bil og kollektivtransport.

  • Kontakt oss for visning og tilbud:

    Lasse Bjørnson

    Lasse Bjørnson

    90 60 44 81
    lb@arealpartner.no

    Nærområdet:

    Annonsene kan være mangelfulle i forhold til lovpålagt opplysningsplikt. Før bindende avtale inngås oppfordres interessenter til å innhente komplett informasjon fra meglerforetaket, selger eller utleier.