Til leie

Skøyen: Unike lokaler i de historiske vognhallene, areal fra 290 til 637 kvm. Mulig m/kortidsleie.

Nøkkelinfo:

Adresse:
Karenslyst allé 18, 0278 OSLO

Type lokale:

Kontor

Beliggenhet:

Karenslyst allé er hjertet av Skøyen og et av Oslos mest attraktive og dynamiske byområder. Gaten er kjent for sitt moderne preg, gode servicetilbud og et pulserende byliv. Her finner du et stort utvalg av butikker, kaféer, restauranter, treningssentre og spesialforretninger, alt innen få minutters gange.

Karenslyst allé har svært gode kollektivforbindelser. Skøyen stasjon ligger like ved, med både tog, buss og trikk, samt enkel adkomst til E18. Dette gjør området attraktivt for både besøkende og pendlere.

Adkomst:

Se vedlagt kart.

Innhold:

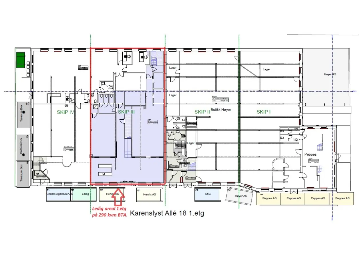
Vi har følgende areal ledig:
1.etg. 290 kvm BTA. Store åpne arealer med god takhøyde. Lokalene består av respesjonsområde, møterom og åpent areal som i dag er innredet for frisør. Lokalene passer også godt for andre formål som showroom, butikk og publikumsrettet virksomhet, m.m.
2.etg. 347 kvm BTA.: Unike lokaler med god takhøyde. Lokalene består av åpne rom, to møterom og 4 kontorer. Lokalene passer godt for showroom, kontor, eventer, m.m.

Lokalene kan leies samlet eller hver for seg.

Lokalene kan tilpasses leietaker i forhold til deres behov og ønsker.

Parkering:

Mulig å leie p-plasser utenfor bygget.

Kontakt oss for visning og tilbud:

Silje Bolstad

Silje Bolstad

92 05 42 22
sb@arealpartner.no

Reidar Kjølberg

Reidar Kjølberg

95 28 26 60
rk@arealpartner.no

Nærområdet:

Annonsene kan være mangelfulle i forhold til lovpålagt opplysningsplikt. Før bindende avtale inngås oppfordres interessenter til å innhente komplett informasjon fra meglerforetaket, selger eller utleier.